Nyproduktion Skårs Varberg – Arkitektritade hem | Nära hem

I Gällinge, där det böljande öppna landskapet möter skogen, ligger det populära turistmålet Skårs gård. Gården med tillhörande jordbruksmark och skog har anor från 1800-talet.

När en storm svepte in över höjden och fällde en del av skogen skapades helt nya förutsättningar. På hygget fanns nu plats för annat liv, för barnskratt, odlingar och nya hem. Marken styckades av från Skårs gård och där har Nära hem nu fått möjligheten att bidra till ortens utveckling genom att bygga 30 villor i den by vi kallar Skårs.

På vägen hit passerar du fält och faluröda ladugårdar. Här bor du nära allt, mitt i naturen, med gångavstånd till Skärsjön, Långaresjön och Agnsjön. Ett liv i Skårs är ett lugnt liv där naturens skiftningar genom årstiderna blir en del av ditt hem. Ett liv där skogspromenader, friluftsliv och bad i sjön är en del av din vardag. 

I Gällinge finns förskola, F-5-skola och en omtyckt lanthandel. Kungsbacka nås på 15 minuter, och på 40 minuter är du i centrala Göteborg.

Mitt i skogen men ändå nära till allt. En oas av naturnära lugn i modern tappning.

Natursköna omgivningar i Skårs, Varberg, perfekt för nyproduktion av moderna hem.
Nära hem förverkligar husdrömmar i Skårs med fokus på hållbarhet och lokalkännedom.
Natursköna omgivningar i Skårs, Varberg, perfekt för nyproduktion av moderna hem.

Tunen bygger på en radiell tomtindelning där det gemensamma tunet är den centrala knutpunkten.

GRUNDHUS OCH TILLVAL

Välj ert hus

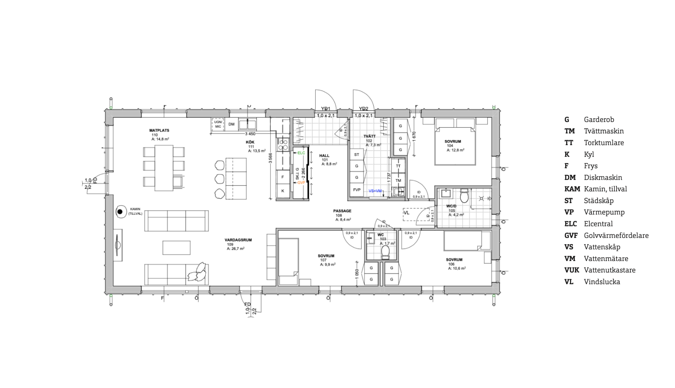
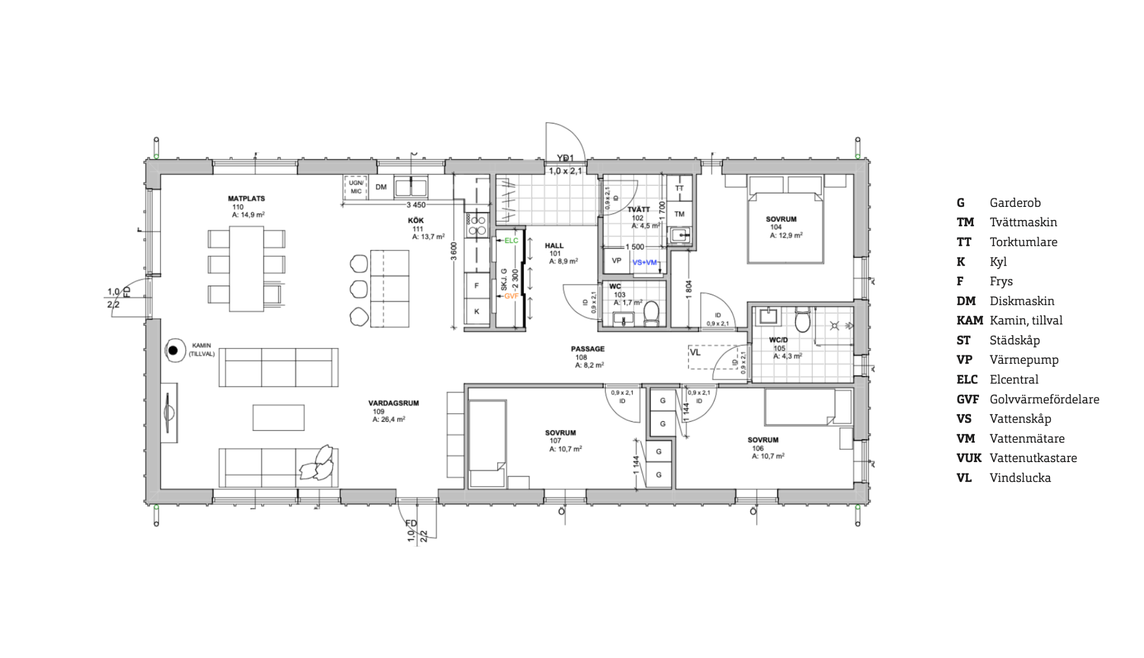
Husen finns i olika storlekar och med olika alternativ på planlösningar. Grundmodellerna är 1-plan och 1,5-plan. Om man väljer 1,5-plan kan man välja att inreda övervåningen i ett senare skede. Husen har en öppen planlösning med mycket ljusinsläpp i de sociala ytorna.

Husens fasader kläs i stående rakkantad falsad panel med stående skugglister. Välj mellan fyra olika kulörer; svart, beige, mörkgrön eller olivgrön. Garage går att välja till och detta målas i samma kulör som huset. I grundutförande får alla husmodeller tak i form av betongpanna i kulör matchande fasaden. Det finns möjlighet att välja plåttak som tillval. Fönsterkarmarna är i aluminium och även fönstren får en kulör som matchar fasaden.

Arkitektritat trähus i Skårs byggt med teknisk precision och hållbara material.
Totalentreprenad för unika hem i Halland med exempel från projektet Skårs.

Ett intelligent hem – SI Homeside

Prislista

Tun 3 – Skårs Fälle

Tun 6 – Skårs Höjd

TomtTomtareaTomtprisStatus
3A1552 kvm1 000 000 krSÅLD
3B1542 kvm1 000 000 kr
3C1633 kvm1 150 000 kr
3D1726 kvm1 150 000 kr
3E1564 kvm1 000 000 kr
3F1553 kvm1 000 000 kr
TomtTomtareaTomtprisStatus
6A1665 kvm1 380 000 kr
6B1958 kvm1 380 000 krSÅLD
6C2000 kvm1 380 000 kr
6D1799 kvm1 380 000 krSÅLD
HusmodellBOAPris
Villa SK1 (svart/beige)112 kvm33 789 000 kr
Villa SK2 (svart/beige)112 kvm3
3 839 000 kr
Villa SK3A (svart/beige)160,4 kvm4 4 525 000 kr
Villa SK3B (svart/beige)160,4 kvm4 4 525 000 kr
Villa SK3C (svart/beige)112 (160,4) kvm3 3 815 000 kr
Villa SK4A (svart/beige)120 kvm3 3 690 000 kr
Villa SK4B (svart/beige)120 kvm3 3 770 000 kr
Kvalitetssäkrat husbygge i Skårs där design möter funktion och lokalt snickarkunnande.

Fakta

Förutom att betala för tomten och det hus ni väljer tillkommer avtal och avgifter vid olika tidpunkter under byggprocessen.

Vatten, avlopp och fiber – Anslutningsavgifter om ca 200 000 kr. Avser medlemskap i förening kopplad till det kommunala VA-nätet. Nära hem sköter anmälan och inkoppling.

El – Anslutningsavgift för elektricitet är ca 40 000 kronor. Nära hem tar hand om anmälan och inkoppling.

Bygglovsavgift – Kostnad för bygglov, startavgift med mera uppgår totalt till ca 66 000 kronor. Nära hem ordnar med ansökan och anmälningarna till Kungsbacka kommun.

Deponi och byggström – Denna kostnad ingår i huspriset.

Lagfart –
Kostnaden för lagfart är 1,5 procent av tomtpriset.

Entreprenadavtal – Ett entreprenadavtal tecknas enligt branschöverenskommelsen ABS 18. I entreprenaden ingår färdigställandeskydd och ansvarsförsäkring. I avtal med Nära hem ingår dessutom en tioårig garanti avseende isolering på installation och isoleringsmaterial. En extern kontrollansvarig är tecknad för hela projektet. Ingen av parterna har rätt att överlåta avtalet till annan part.

Intresseanmälan Skårs Tun 3 & 6

Jag är intresserad av mer information om ett Nära hem i Skårs. Observera att detta inte är en kölista utan endast gäller intresse om mer information.